Archi-ncane will be taking part in the upcoming Sydney Climate Action Week

Featured project

Denison

Location

Location: Wangal Gadigal Country, Lewisham NSW

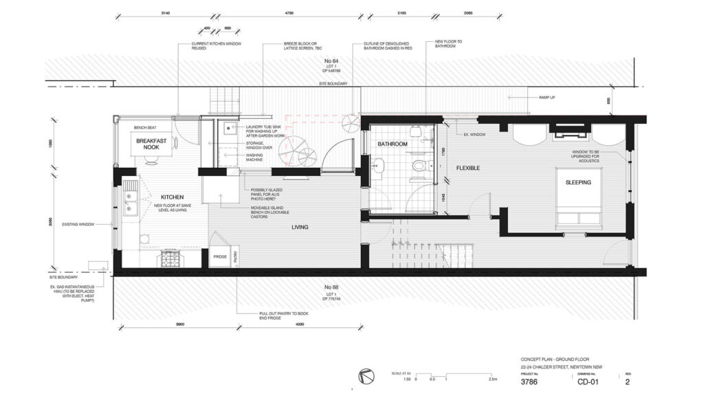
The client for this project was eager to adapt their three-level terrace into a space suitable for aging in place. The ground floor is adapted for mobility, connection to the lush garden and maximising solar gain. The other floors are then left available for shared living.

The interior design works hard to provide storage and flexibility for a collection of artwork, crafts, hobbies, gardening equipment and mementos.